Egy jól megtervezett otthon ott is működik, ahol a telek adottságai kihívást jelentenek.
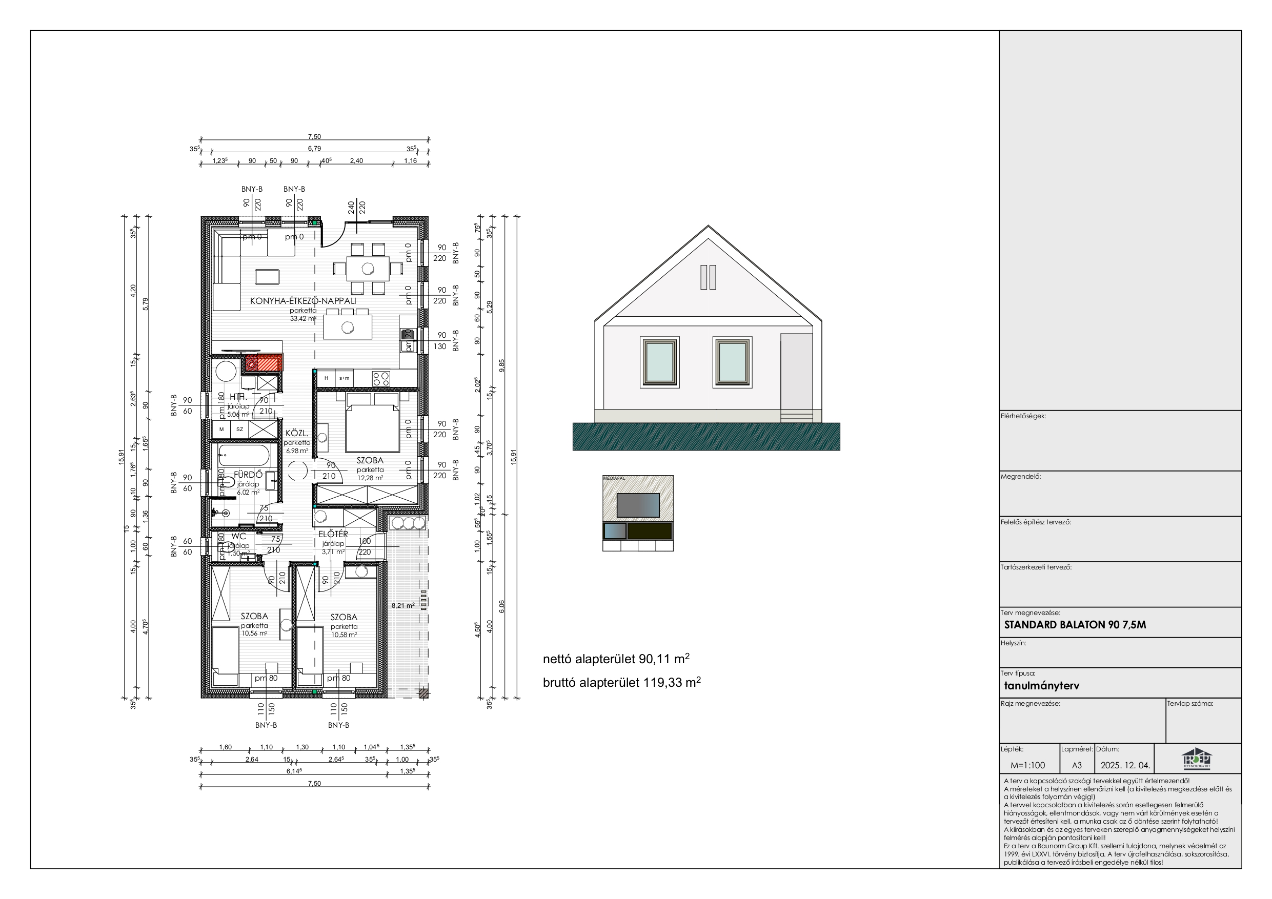
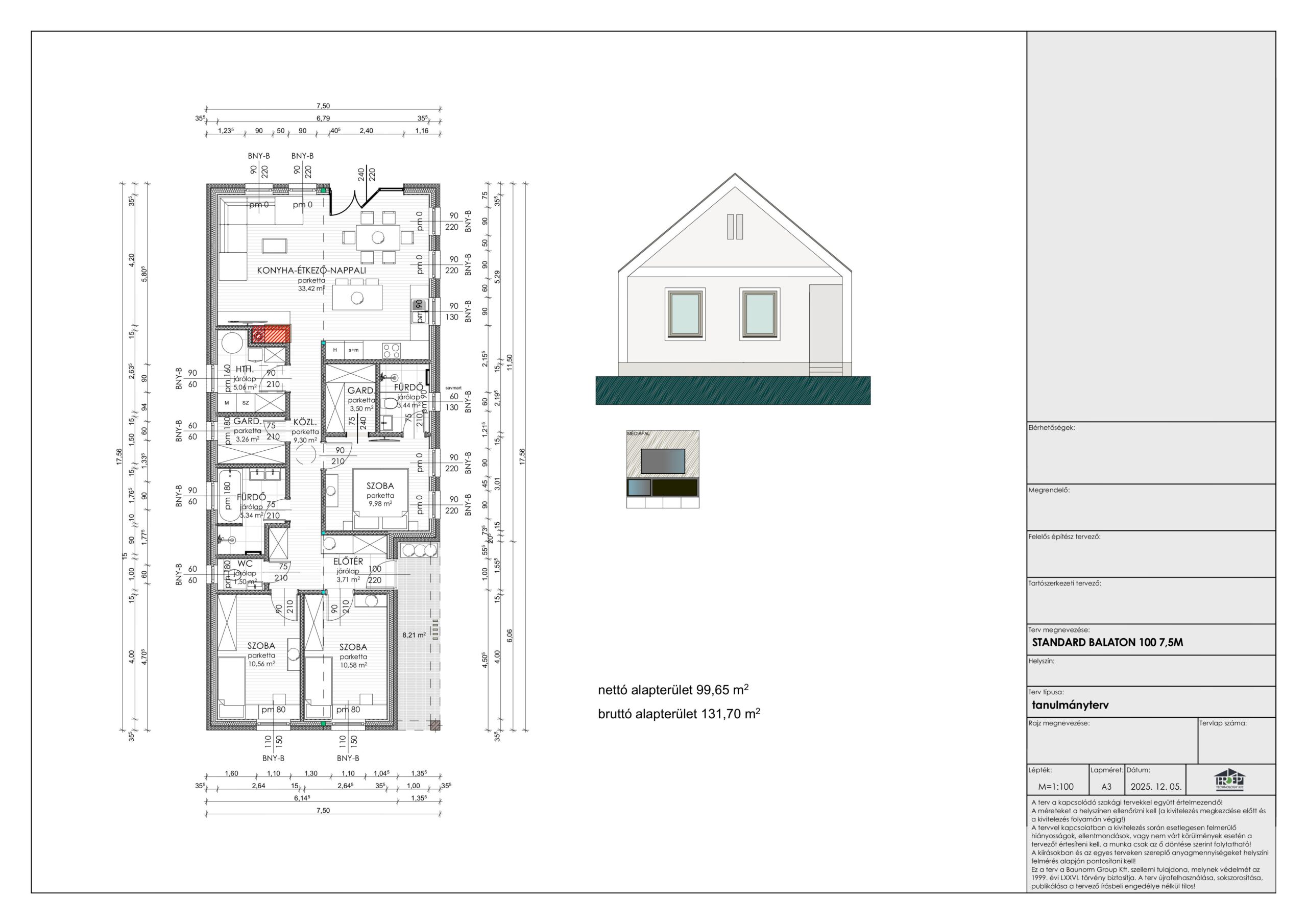
A Standard Balaton típusház ideális választás pároknak és kisebb családoknak, keskeny telkekre optimalizált kialakítással. A gondosan megtervezett alaprajz élhető alapterületet, jól kihasznált tereket és kiváló ár-érték arányt kínál.
A napfényes, amerikai konyhás nappali a mindennapok központja, amely pihenésre és közös együttlétekre egyaránt alkalmas. A szeparált hálóterek nyugodt, kiegyensúlyozott életteret biztosítanak.







Az esztétika akkor válik igazán értékké, ha alkalmazkodik a környezethez.
A Standard Balaton hosszház jellegű szerkesztése kifejezetten keskeny telkekhez igazodik, miközben megőrzi az arányos, elegáns megjelenést. Az udvar felé tájolt, nagyméretű üvegfelületek bőséges természetes fényt engednek a belső terekbe, világos, tágas érzetet teremtve.
A letisztult formavilág és az átgondolt részletek harmonikus, modern otthont eredményeznek, amely hosszú távon is kényelmes és értékálló választás.
Köszönjük érdeklődésed és az ajánlatkérésed! Sajnos a folyamatosan induló új építkezések miatt csak Észak-Nyugat Magyarországon, a Balaton körül, illetve Budapest környékén tervezett építkezésekre vállaljuk árajánlat készítését.
Megértésedet köszönjük!
Élj a díjmentes konzultáció lehetőségével!
INGYENESEN, közösen kialakítjuk a megálmodott alaprajzot, abból létrehozzuk egyedi árajánlatodat.
Díjmentesen és pénzügyi intézménytől függetlenül elintézzük a banki finanszírozást (építési hitel, CSOK, Falusi CSOK, Babaváró, ÁFA) helyetted.
Gyakorlatunk szerint bekérjük ügyfeleinktől az építkezés helyszínét, annak érdekében, hogy a közös alaprajz kialakítását már a HÉSZ (helyi építési szabályzat) előírásai mentén végezzük.
Kérjük, ha elkészült egy alaprajzi terv (akár kézi rajz formájában) csatolmányba küldd el nekünk!
Proép-Technology Kft. © 2023
A honlapon feltüntetett árak tájékoztató jellegűek, Mosonmagyaróvár 50 km-es vonzáskörzetében történő építés esetén érvényesek. A vállalkozó az árak változtatásának jogát fenntartja.